ASSET-LETTINGS-MUD-SOCIAL

61 Hollybrook Park, Bray, Bray, Co. Wicklow, A98FX01

  • €427K
  • €427K/Sqft
61 Hollybrook Park, Kilruddery Demesne West, Bray, County Wicklow, Ireland
Featured For Sale Sold
61 Hollybrook Park, Bray, Bray, Co. Wicklow, A98FX01
61 Hollybrook Park, Kilruddery Demesne West, Bray, County Wicklow, Ireland
  • €427K
  • €427K/Sqft

Description

Built in the mid 1990’s; Nestled in a tranquil setting with a picturesque outlook over an amenity green and the scenic backdrop of the Little Sugarloaf, No. 61 Hollybrook Park is a charming two-bedroom end-of-terrace home. Ideally positioned adjacent to the grounds of Kilruddery Estate, this property offers both a serene environment and convenient access to local amenities.
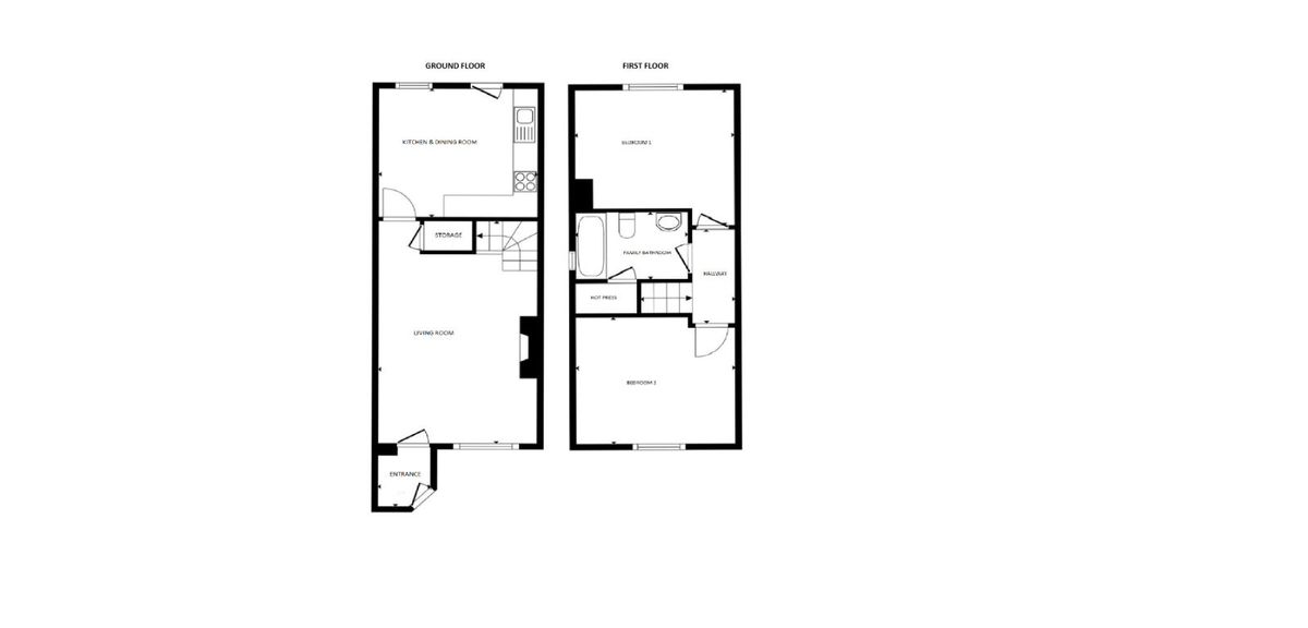
Presented in excellent condition, the interior is thoughtfully designed for modern living. The accommodation spans two floors, beginning with an inviting entrance hall leading into a spacious living room. This welcoming space features an open fireplace, ceiling coving, recessed lighting, and wood flooring, which continues seamlessly throughout the ground floor. To the rear, a well-appointed tiled kitchen/diner opens directly onto the garden and is fitted with an array of wall and floor units, a tiled splashback, and integrated appliances, including an oven, microwave, gas hob, dishwasher and freestanding washing machine.
Upstairs, two generously sized double bedrooms boast elegant wood flooring, with the principal bedroom further enhanced by built-in wardrobes. A spacious fully tiled family bathroom off the landing completes the accommodation.
Externally, the home benefits from a private driveway with hedging, offering secure off-street parking. The rear garden extends approximately 42 ft, featuring a raised lawn enclosed by fencing, and a shed for additional storage.
Hollybrook Park enjoys a prime location on the southern side of Bray, with easy access to the N11/M50 corridor. Bray’s bustling main street and scenic seafront are just a short distance away, offering a fantastic selection of shops, cafés, and restaurants. The surrounding area is home to local businesses, supermarkets, and well-regarded primary and secondary schools. For outdoor enthusiasts, Kilruddery Estate & Gardens, Bray Head, and the renowned cliff walk are all within comfortable walking distance. Excellent transport links, including the DART and Dublin Bus services, ensure a smooth commute to Dublin city centre and beyond

  • Address 3001 W Ainslie St
  • State/county Wicklow
  • Zip/Postal Code 60625
  • Area Bray, Dublin County

Details

Updated on November 11, 2025 at 1:17 pm
  • Property ID: 61holly
  • Price: €427K
  • Property Size: 72 Sq M
  • Bedrooms: 2
  • Bathroom: 1
  • Year Built: 1995
  • Property Type: Semi‑Detached House
  • Property Status: For Sale, Sold

Additional details

  • Type: 2 Bed End of Terrace home
  • Condition: Very good condition throughout
  • Bedrooms: Two double bedrooms, one with built in wardrobes
  • Windows: Double glazed windows
  • Heating: Gas fired central heating
  • Parking: Off street parking
  • Location: Very quiet location within the development
  • Transport: Bray Dart station and sea front just 3.5km away
  • Local Facilities: Shoreline leisure centre and pool just 1.5km walk

Features

Mortgage Calculator

Monthly
  • Down Payment
  • Loan Amount
  • Monthly Mortgage Payment
  • Home Insurance
%
%

Floor Plans

image

Description:
Plan description. Lorem ipsum dolor sit amet, consectetuer adipiscing elit, sed diam nonummy nibh euismod tincidunt ut laoreet dolore magna aliquam erat volutpat. Ut wisi enim ad minim veniam, quis nostrud exerci tation ullamcorper suscipit lobortis nisl ut aliquip ex ea commodo consequat.

image

Description:

360° Virtual Tour

What's Nearby?

Please supply your API key Click Here

Contact Information

View Listings

Enquire About This Property

Similar Listings

0 Review

Sort by:
Leave a Review

Leave a Review

Compare listings

Compare
Jennifer
  • Jennifer